1 trệt 2 lầu là thiết kế dễ dàng bắt gặp ở những căn nhà phố hiện nay, bởi không gian này đáp ứng được nhu cầu sinh sống của những gia đình có nhiều thế hệ. Vậy bạn đã biết cách thiết kế nội thất nhà 1 trệt 2 lầu đẹp mang đậm phong cách riêng vừa tiết kiệm nhiều chi phí chưa? Bài viết dưới đây, Mê Nội Thất đã tổng hợp một số mẫu hot trend trên thị trường. Hãy tham khảo ngay nhé.

[Tổng hợp] bản vẽ mặt bằng nội thất nhà 1 trệt 2 lầu đẹp nhất
Mặt bằng mô phỏng cách bố trí nội thất nhà ống 1 trệt 2 lầu
Việc bố trí nội thất trong một ngôi nhà ống 1 trệt 2 lầu đòi hỏi sự sáng tạo và tính hiệu quả trong việc sử dụng tối ưu diện tích trong không gian hạn chế. Trong đó, tầng trệt thường được dành cho không gian phòng khách, phòng bếp. Lầu 1 là phòng ngủ chính, kết hợp phòng đọc sách hoặc phòng sinh hoạt chung. Lầu 2 là phòng ngủ phụ kết hợp với các công trình khác như nhà vệ sinh…

Mặt bằng tầng trệt trong thiết kế nhà 1 trệt 2 lầu

Mặt bằng bố trí nội thất lầu 2

Bảng vẽ mô phỏng thiết kế nhà 1 trệt 2 lầu
Mặt bằng mô phỏng nội thất nhà 1 trệt 2 lầu có sân thượng
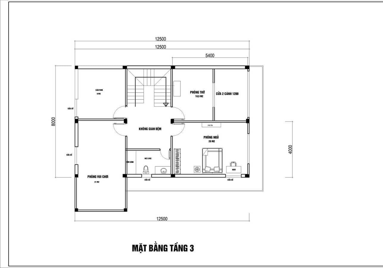
Mặt bằng nội thất nhà 1 trệt 2 lầu có sân thượng sẽ có kết cấu khác một chút so với các mặt bằng thông thường. Đó là việc bố trí sân thượng ở tầng cao nhất của ngôi nhà, bạn có thể thiết sân thượng với không gian ngoài trời rộng rãi, đặt thêm bàn ghế thư giãn, hòa mình với bầu trời, decor thêm cây cỏ hoặc thậm chí có thể tạo một khu vườn nhỏ xinh xắn.

Sân thượng giúp ngôi nhà tối ưu được diện không gian sinh hoạt

Mặt bằng sân thượng kết hợp khu vui chơi

Mặt bằng tầng thượng kết hợp phòng thờ
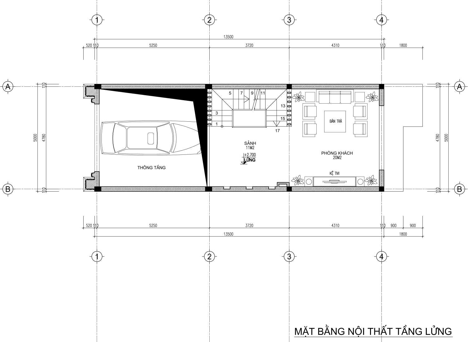
Mặt bằng mô phỏng nội thất nhà 1 trệt 2 lầu có tầng lửng
Đối với nhà 1 trệt 2 lầu có tầng lửng, bạn hoàn toàn có thể tận dụng không gian trung gian giữa tầng trệt và tầng lầu trong ngôi nhà để làm một phòng làm việc, nếu phòng đủ lớn, bạn hoàn toàn có thể biến nơi này thành một khu giải trí với TV, âm thanh, ghế sofa để xem phim hoặc chơi trò chơi. Nếu bạn yêu thích đọc sách, bạn cũng có thể tạo một thư viện hoặc phòng đọc trên tầng lửng với các kệ sách và ghế xếp.

Mặt bằng tầng lửa dành cho không gian nhà ống

Mặt bằng gác lửng ở giữa lầu 1 và tầng trệt

Thiết kế thông tầng tạo ra một không gian lửng rộng rãi thoáng mát
Lưu ý khi thiết kế nội thất nhà 1 trệt 2 lầu khoa học, tiện nghi
Chú ý bố trí các phòng chức năng phù hợp
Đối với nhà 1 trệt 2 lầu thì tầng trệt thường dành cho không gian phòng khách. Gia chủ có thể bố trí ghế sofa, bàn trà, và các món nội thất khác để tạo không gian thoải mái và thân thiện cho việc tiếp đón khách và gia đình. Phía sau phòng khách là phòng bếp và nhà vệ sinh ở cuối cùng.

Thông thường trong thiết kế nhà 1 trệt 2 lầu phòng khách sẽ liền phòng bếp
Lầu 1 là vị trí của phòng ngủ chính và nhà vệ sinh phụ. Nếu có tầng lửng bạn cũng có thể thiết kế phòng sinh hoạt chung ở tầng này để tạo không gian giải thích cho gia đình. Tầng trên cùng thường là phòng ngủ phụ hoặc phòng thờ. Ngoài ra, bạn cũng có thể tạo sân thượng hoặc ban công ở tầng này để thư giãn ngoài trời, trồng cây cỏ hoặc làm một khu vườn nhỏ xinh xắn.
Chú ý đến cách phối màu sắc
Phối màu sắc trong ngôi nhà 2 lầu 1 trệt là một phần quan trọng của thiết kế nội thất giúp tạo ra một không gian ấm áp, thú vị và thẩm mỹ. Để an toàn nhất thì bạn nên chọn một tông chính màu sáng cho không gian và sử dụng các màu sắc bổ sung như vàng, xanh, đỏ nâu.. của ghế đèn, tranh treo, kệ treo tường, hoặc các phụ kiện như gối tựa là đủ để có một không gian hài hòa, đẹp mắt.

Nên lựa chọn những màu sơn trung tính để dễ phối nội thất
Hệ thống đèn chiếu sáng
Hệ thống đèn là một phần rất quan trọng trong thiết kế nhà 1 trệt 2 lầu. Với không gian này, bạn chỉ cần đảm bảo hệ thống đèn được đồng nhất để tạo sự liên kết giữa các phòng. Bên cạnh đó, bạn cần cân đối lượng ánh sáng hài hòa, không được quá chói cũng không nên quá tối. Nên sử dụng các loại đèn trắng để tạo cảm giác sáng sủa. Ngoài ra, bạn cũng có thể điểm thêm một ít đèn vàng để tạo sự ấm áp, chill chill lãng mạn nhưng không bị nóng bức cho căn phòng cũng là một ý hay có thể thử.

Hệ thống đèn trong nhà 1 trệt 2 lầu nên đồng nhất để tạo sự liên kết
Cần chú ý yếu tố phong thủy trong thiết kế nhà
Văn hóa Á Đông đặc biệt chú ý đến phong thủy, đặc biệt là trong những vấn đề có tính hệ trọng như việc xây nhà. Đối với nhà 1 trệt 2 lầu bạn cần lưu ý những điểm cơ bản sau:
- Cửa chính luôn phải đặt ở vị trí chính giữa căn phòng và không có vật cản để thu hút dòng năng lượng tích cực vào nhà.
- Nên chọn những màu sơn tường và màu sơn nội thất chính hợp mệnh với gia chủ giúp đem đến nhiều may mắn và thuận lợi trong cuộc sống.

Hướng nhà hợp phong thủy là một việc hết sức lưu ý trong xây nhà
Bếp cũng là một không gian được chú ý trong thiết kế. Trong phong thủy tâm linh, bếp tượng trưng cho năng lượng của ngôi nhà và mang năng lượng hỏa. Chậu rửa tượng trưng cho năng lượng thủy, do vậy cần tránh đặt hai nội thất này gần nhau để tránh gây xung đột.
Ngoài ra, phòng ngủ cũng cần được đặt đúng hướng hợp tuổi của gia chủ để đảm bảo giấc ngủ được ngon giấc, an lành.
Mẫu thiết kế nội thất nhà 1 trệt 2 lầu đẹp, xu hướng nhất 12/2025
Mẫu 1: Mẫu nhà 1 trệt 2 lầu theo phong cách mộc mạc, giản dị

Phòng khách với tông màu kem chủ đạo hài hòa, dịu nhẹ

Phòng ngủ theo phong cách basic vintage nhẹ nhàng ấm áp

Nhà vệ sinh với gương gắn tường sang trọng hiện đại
Mẫu 2: Mẫu nhà 1 trệt 2 lầu theo phong cách Boutique

Nhà 1 trệt 2 lầu thường có thiết kế cầu thang ở phòng khách

Phòng ăn phong cách Boutique với nội thất gỗ mang đến sự nhẹ nhàng, mộc mạc

Nhà vệ sinh được trang trí giá treo khăn dạng thang decor đầy sáng tạo

Phòng ngủ kiểu mở với rèm cửa lớn giúp đem lại sự sáng sủa và tươi mát cho căn phòng

Phòng em bé thường nằm ở trên cùng tạo sự thoải mái và tự do
Mẫu 3: Mẫu nhà 1 trệt 2 lầu thiết kế hiện đại sang trọng với gam màu trung tính

Phòng khách với ghế sofa cỡ lớn kết hợp đèn chùm hình quả cầu nhỏ lấp lánh

Thiết kế bàn ăn dạng quầy bar giúp không gian tăng thêm sự sang trọng, cá tính

Bàn ăn phong cách Boutique với bình hoa và ấm trà đơn giản nhưng đầy cuốn hút

Lá phong giúp không gian phòng khách thêm điểm nhấn thơ mộng

Decor phòng khách bằng ghế sofa chân sắt ấm áp nhưng không kém phần vững chãi

Bàn ăn được decor hoa và trái cây giúp tăng sức hút cho thị giác làm cho bữa ăn được ngon hơn

Phòng ngủ được decor ghế đọc sách và đèn chill ngắm view từ trên cao
Đơn vị uy tín thiết kế thi công nội thất nhà 1 trệt 2 lầu
Mê Nội Thất tự hào là một trong những đơn vị thi công nội thất hàng đầu với hơn 20 năm kinh nghiệm trong ngành. Chúng tôi cam kết mang đến cho bạn những dự án nội thất đẳng cấp, sáng tạo và độc đáo, phản ánh chính xác phong cách và cá tính riêng của từng gia đình.
Với đội ngũ kiến trúc sư, thiết kế và thợ lành nghề, Mê Nội Thất đã thực hiện thành công hơn 1000 dự án lớn nhỏ trên cả nước, từ căn hộ chung cư, biệt thự, nội thất nhà 1 trệt 2 lầu… cho đến nội thất văn phòng với chất lượng đạt tiêu chuẩn quốc tế. Ngoài ra, Mê Nội Thất còn có hệ thống sản xuất nội thất cùng dây chuyền thiết kế hiện đại, giúp tối ưu hóa được thành phẩm nội thất, đảm bảo thời gian thi công mà chất lượng luôn được đảm bảo.
Ngoài ra, Mê Nội Thất còn sở hữu hệ thống xưởng lên đến 2500m2 đặt tại Quận 12 giúp tích trữ nguồn nguyên vật liệu vô cùng lớn, hỗ trợ việc thiết kế và thi công nội thất đúng thời gian cam kết. Chính vì sở hữu hệ thống xưởng sản xuất trực tiếp nên giá nội thất của chúng tôi cũng rẻ hơn trên thị trường đến 30% vô cùng ưu đãi. Do vậy, nếu bạn có nhu cầu tìm đơn vị thiết kế nội thất TP.HCM hãy liên hệ với chúng tôi để bắt đầu thảo luận về dự án cũng như nhận được sự tư vấn chuyên nghiệp và miễn phí từ chúng tôi nhé.
(Nguồn hình ảnh: Sưu cầm)
>> Tham khảo ngay:
